Design Work
Visual Art
Model Making
Drafting
Resume
Contact
Jennifer Kroon-Nelson Scenic & Production Design
Design Work
Visual Art
Model Making
Drafting
Resume
Contact
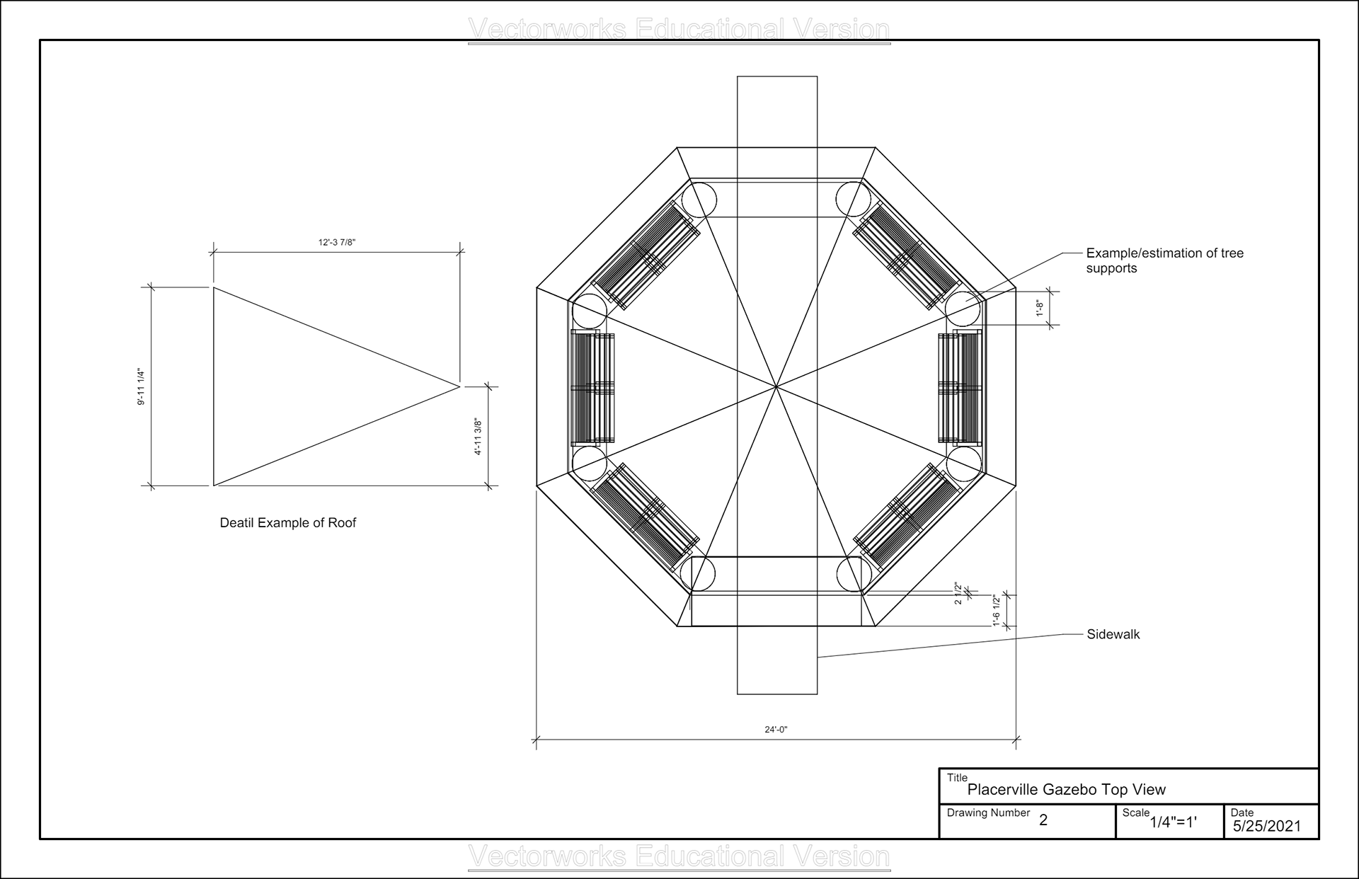
Placerville Gazebo
↑
Back to Top